Sur la Valette Nord, au coeur du célébre domaine des Mouliéres dans un petit écrin de verdure :
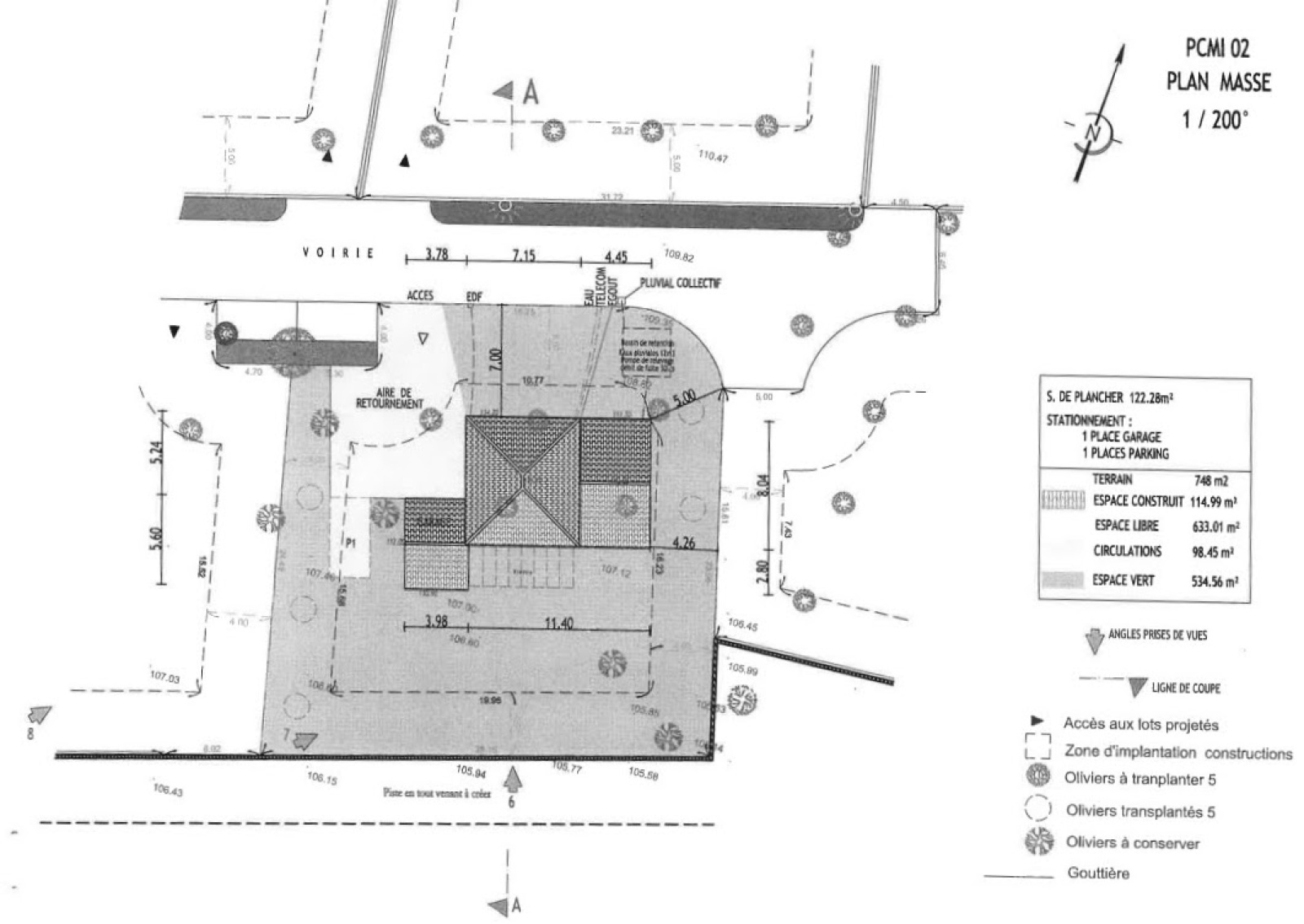
Terrain constructible de 748m²
Permis déposé et purgé de tous recours, pour une maison de type 5.
Construction commencée :
-Raccordements effectués
-Fondations creusées et baties
-Premier plancher coulé
Surface plancher du permis accepté et purgé :
122m² au sol - Garage inclus
R+1 sur une partie de la maison
La maison sur plan :
Au rez de chaussée :
Immense piece de vie, cuisine incluse, suite parentale, garage.
A l'étage :
Trois chambres, salle de bains
L'avantage ?
Vous n'aurez pas d'attente, les travaux pourront reprendre une fois l'achat du terrain acté, et vous aurez le choix de l'agencement intérieur, ainsi que des matériaux (Cuisine salle de bains etc..).
Une situation exceptionnelle, pour une construction dans l'air du temps.
Retrouvez une vidéo de la maison sur :
https://www.youtube.com/watch?v=pU4OpZR9VIk
